2007
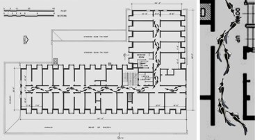
Alarm Pattern, a concept design suggested for temporary public habitat. Keeping natural disasters in mind, initially Alarm Pattern was designed to detect the dangerous waves that hit the surface of the earth. Later modifying the idea, resulting in an alarm system that is not only used to detect earthquake but can also be used in case of any emergency (such as in public buildings, hotels/offices). This system is designed suggesting the use of LEDs and digitally printed fabric sandwiched between glass floor tiles. The LEDs become active when the earthquake wave is detected by the programme connected to the system. [This was developed for Philips Design, as part of future scenario project at Central Saint Martins- Habitat for 2050].

